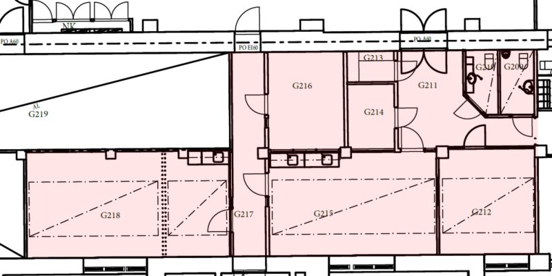
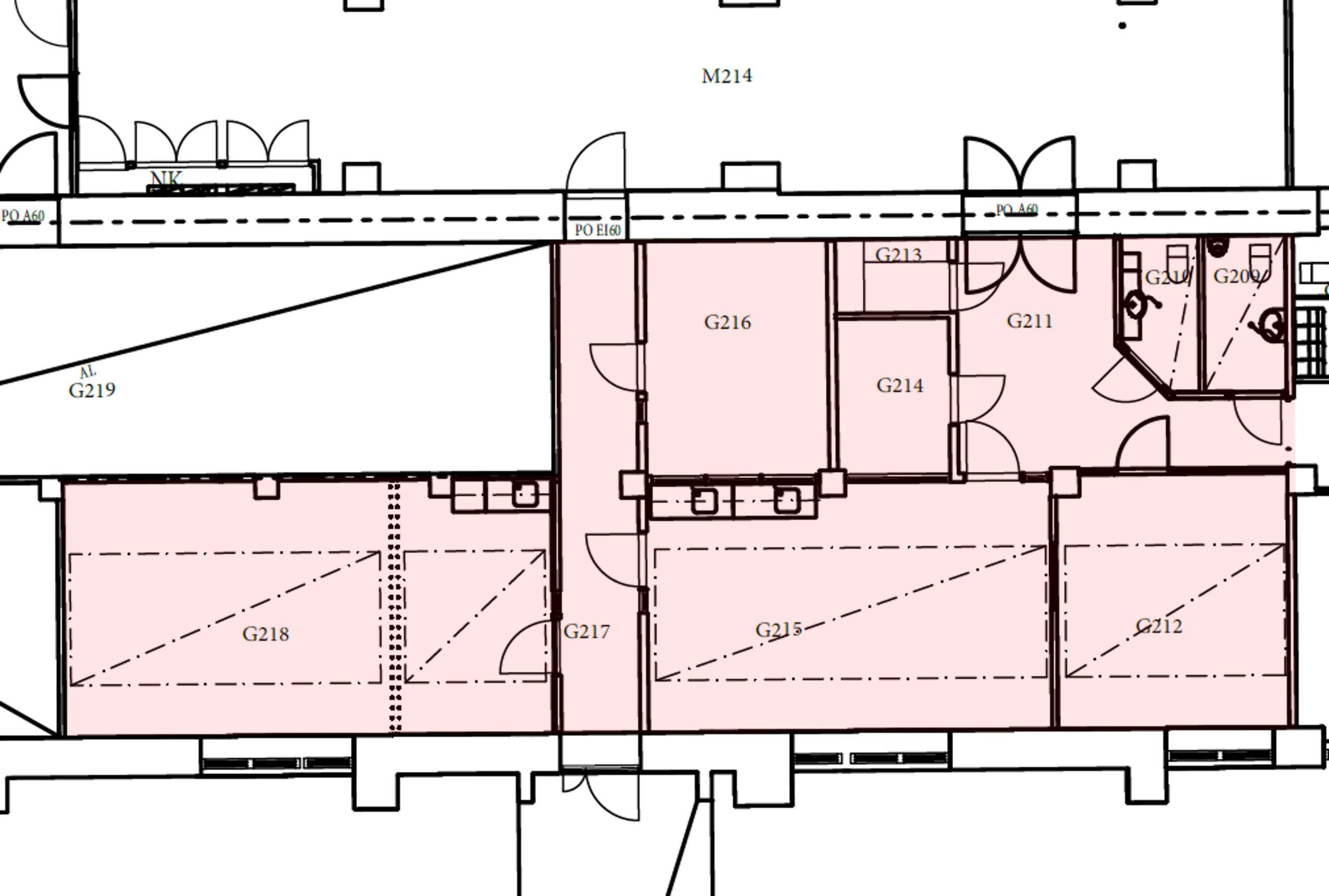
116 m²

Tietoja tilasta

Wsoytalon 1. kerroksessa sijaitseva toimisto. Useita toimistohuoneita, taukotilat + wc-tilat. Ikkunanäkymät sisäpihalle. Tule tutustumaan!

Katso kohteen muita vapaita toimitiloja

Neliö­määrä

Kerros

Kiin­teistö

Lue lisää

47m²

4.krs

Wsoytalo

79m²

1.krs

Wsoytalo

148m²

1.krs

Wsoytalo

45m²

1.krs

Wsoytalo

16m²

3.krs

Wsoytalo

269m²

4.krs

Wsoytalo

66m²

2.krs

Wsoytalo

18m²

3.krs

Wsoytalo

Ota yhteyttä!

Simo Niemelä

Kiinteistöjohtaja

Yhteydenottolomake

Ota yhteyttä!

Simo Niemelä

Kiinteistöjohtaja

Yhteydenottolomake

Ota yhteyttä!

Marko Liimatainen

Toimitusjohtaja

Yhteydenottolomake

Ota yhteyttä!

Juha Avellan

Kiinteistöpäällikkö

Yhteydenottolomake