Search
Close this search box.

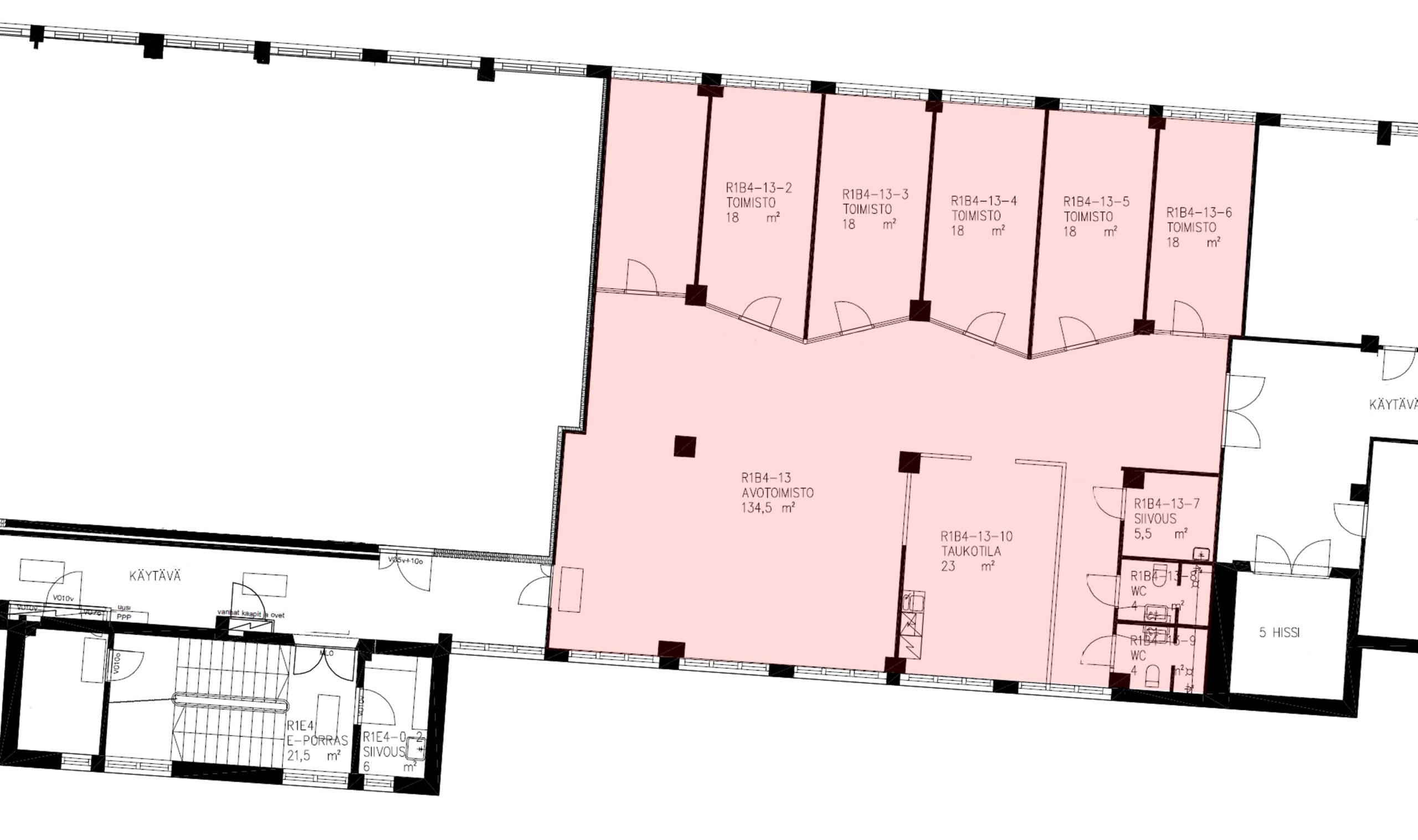
208 m²

Tietoja tilasta

Siistikuntoinen toimisto Askotalon 4. kerroksessa. Läpitalon huoneisto, ikkunanäkymät Mannerheiminkadun ja sisäpihan suuntaan. Useita toimistohuoneita, avotoimisto, viihtyisä taukotila ja wc-tilat. Askotalossa lounasravintola sekä kokouskeskus. Hyvät pysäköintialueet. Askotalo sijaitsee Lahden Matkakeskuksen vieressä.

Katso kohteen muita vapaita toimitiloja

Neliö­määrä

Kerros

Kiin­teistö

Lue lisää

383m²

3.krs

Askotalo

15.5m²

0.krs

Askotalo

35m²

2.krs

Askotalo

143m²

3.krs

Upotalo

22m²

2.krs

Askotalo

25m²

2.krs

Upotalo

20m²

2.krs

Askotalo

26m²

2.krs

Askotalo

Ota yhteyttä!

Simo Niemelä

Kiinteistöjohtaja

Yhteydenottolomake

Ota yhteyttä!

Simo Niemelä

Kiinteistöjohtaja

Yhteydenottolomake

Ota yhteyttä!

Marko Liimatainen

Toimitusjohtaja

Yhteydenottolomake

Ota yhteyttä!

Juha Avellan

Kiinteistöpäällikkö

Yhteydenottolomake