Search
Close this search box.

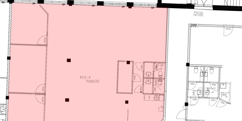
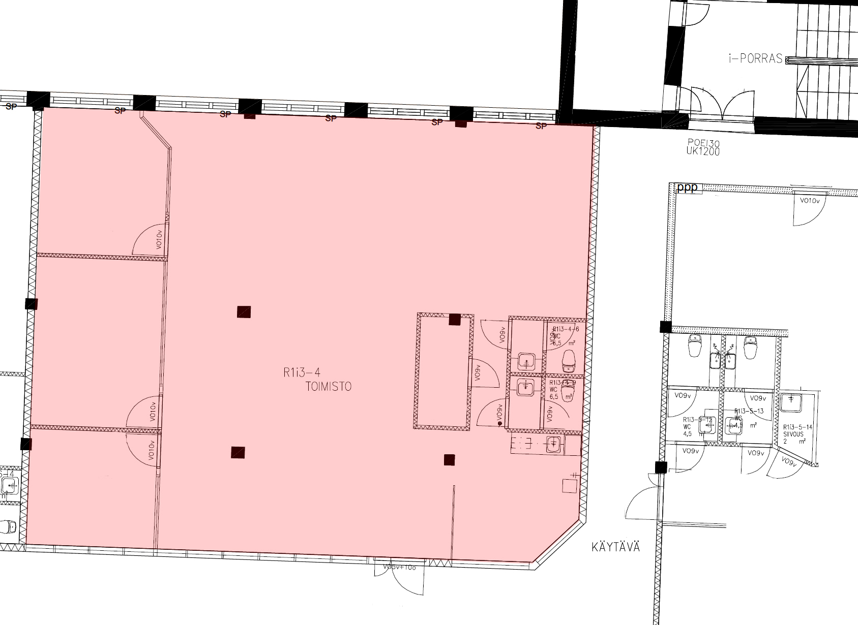
194 m²

Tietoja tilasta

Askotalon 3. kerroksessa sijaitseva toimistohuoneisto rauhallisella sijainnilla. Avotoimiston lisäksi muutamia toimistohuoneita, joita voi käyttää myös neuvottelutiloina. Oma taukotila sekä wc-tilat. Kysy lisätietoja ja sovi esittely!

Katso kohteen muita vapaita toimitiloja

Neliö­määrä

Kerros

Kiin­teistö

Lue lisää

16m²

4.krs

Upotalo

268m²

3.krs

Askotalo

17m²

2.krs

Askotalo

132m²

2.krs

Askotalo

15000m²

1.krs

Upo 2

35m²

2.krs

Askotalo

119m²

0.krs

Askotalo

26m²

2.krs

Askotalo

Ota yhteyttä!

Simo Niemelä

Kiinteistöjohtaja

Yhteydenottolomake

Ota yhteyttä!

Simo Niemelä

Kiinteistöjohtaja

Yhteydenottolomake

Ota yhteyttä!

Marko Liimatainen

Toimitusjohtaja

Yhteydenottolomake

Ota yhteyttä!

Juha Avellan

Kiinteistöpäällikkö

Yhteydenottolomake