Search
Close this search box.

588 m²

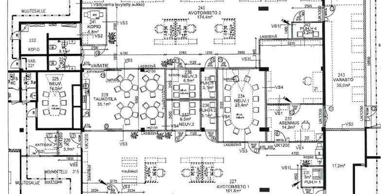
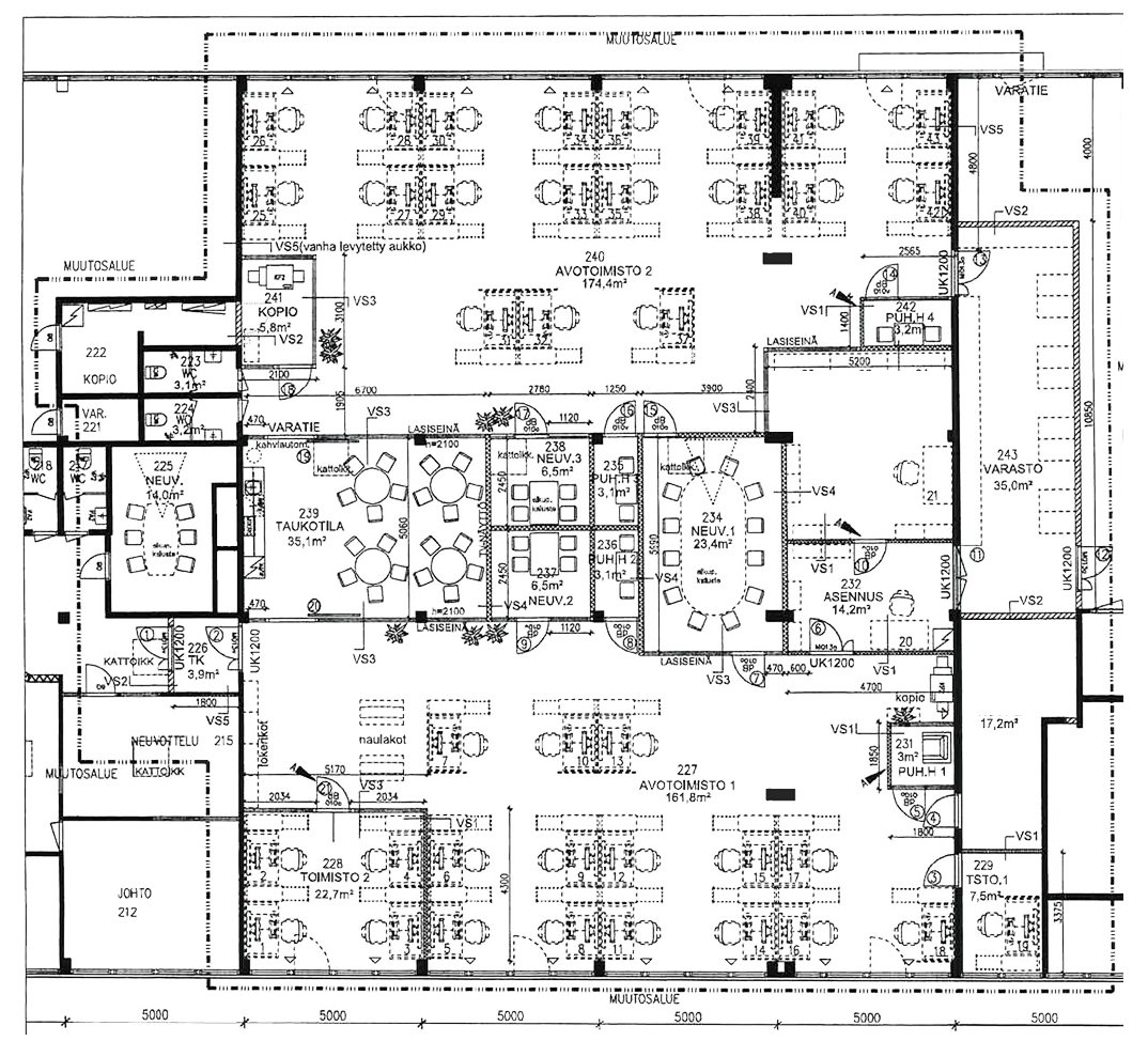
Kiinteistön 2. kerroksessa sijaitseva 588 m2 valoisa toimistotila.

Tietoja tilasta

Kiinteistön 2. kerroksessa sijaitseva 588 m2 valoisa toimistotila. Avotoimistotilaa sekä useita toimistohuoneita, neuvottelutila, taukotila ja wc:t. Pihan pysäköintipaikkoja mahdollista vuokrata.

Katso kohteen muita vapaita toimitiloja

Neliö­määrä

Kerros

Kiin­teistö

Lue lisää

685m²

5.krs

Askotalo

194m²

3.krs

Askotalo

28m²

0.krs

Askotalo

16m²

2.krs

Askotalo

34m²

2.krs

Upotalo

24m²

3.krs

Upotalo

84m²

3.krs

Askotalo

17m²

2.krs

Askotalo

Ota yhteyttä!

Simo Niemelä

Kiinteistöjohtaja

Yhteydenottolomake

Ota yhteyttä!

Simo Niemelä

Kiinteistöjohtaja

Yhteydenottolomake

Ota yhteyttä!

Marko Liimatainen

Toimitusjohtaja

Yhteydenottolomake

Ota yhteyttä!

Juha Avellan

Kiinteistöpäällikkö

Yhteydenottolomake