Search
Close this search box.

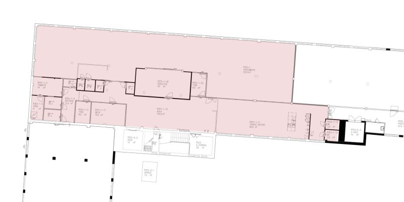
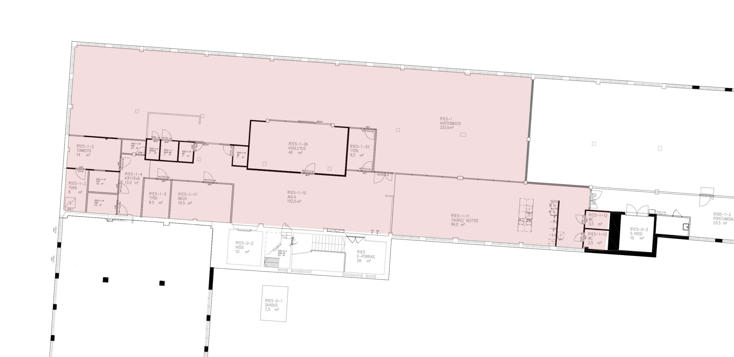
685 m²

Historiallisen Askotalon 5. kerroksessa sijaitseva valoisa toimisto, pinta-ala noin 685m2.

Tietoja tilasta

Askotalon ylimmässä kerroksessa sijaitseva valoisa toimistotila

Historiallisen Askotalon 5. kerroksessa sijaitseva valoisa toimisto, pinta-ala noin 685 m2. Tilava keittiö/taukotila, useita huoneita + wc:t/suihkutilat. Hissillä pääsee kerrokseen. Toimiston ikkunanäkymät Mannerheiminkadun ja sisäpihan suuntaan. Mahdollista yhdistää tilaan R1B5-3 (245,5 m2). Talon ensimmäisessä kerroksessa kahvila- ja lounasravintola sekä eri kokoisia koulutus- ja neuvotteluhuoneita.

Katso kohteen muita vapaita toimitiloja

Neliö­määrä

Kerros

Kiin­teistö

Lue lisää

131m²

0.krs

Askotalo

20m²

0.krs

Askotalo

244m²

5.krs

Askotalo

54m²

0.krs

Askotalo

20m²

2.krs

Upotalo

33m²

2.krs

Askotalo

190m²

2.krs

KOy Lahden Teollisuuskeskus

208m²

4.krs

Askotalo

Ota yhteyttä!

Simo Niemelä

Kiinteistöjohtaja

Yhteydenottolomake

Ota yhteyttä!

Simo Niemelä

Kiinteistöjohtaja

Yhteydenottolomake

Ota yhteyttä!

Marko Liimatainen

Toimitusjohtaja

Yhteydenottolomake

Ota yhteyttä!

Juha Avellan

Kiinteistöpäällikkö

Yhteydenottolomake