Search
Close this search box.

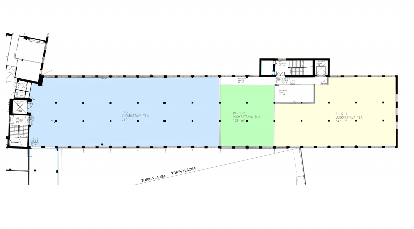
627 m²

Rakentamaton tila 627 m2 Askotalon 2. kerroksessa. Huippusijainti. Ravintola Werstaan ja Askotalon kokouskeskuksen tilat kerrosta alempana.

Tietoja tilasta

Raakatilasta toimitilaksi, vapaana 627m2

Rakentamaton tila 627 m2 Askotalon 2. kerroksessa. Huippusijainti. Ravintola Werstaan ja Askotalon kokouskeskuksen tilat kerrosta alempana. Ikkunanäkymät mm. Askotalon Torille. Hissiyhteys. Tila merkitty pohjakuvaan sinisellä värillä (tilan rajat saattavat poiketa kuvassa olevasta). Otamme suunnittelussa huomioon yrityksesi toiveet, tilan mahdollisuudet sekä ympäristöarvot.

Katso kohteen muita vapaita toimitiloja

Neliö­määrä

Kerros

Kiin­teistö

Lue lisää

17m²

2.krs

Askotalo

54m²

0.krs

Askotalo

34m²

2.krs

Askotalo

29m²

0.krs

Askotalo

685m²

5.krs

Askotalo

119m²

0.krs

Askotalo

59.5m²

0.krs

Askotalo

41m²

2.krs

Upotalo

Ota yhteyttä!

Simo Niemelä

Kiinteistöjohtaja

Yhteydenottolomake

Ota yhteyttä!

Simo Niemelä

Kiinteistöjohtaja

Yhteydenottolomake

Ota yhteyttä!

Marko Liimatainen

Toimitusjohtaja

Yhteydenottolomake

Ota yhteyttä!

Juha Avellan

Kiinteistöpäällikkö

Yhteydenottolomake