Search
Close this search box.

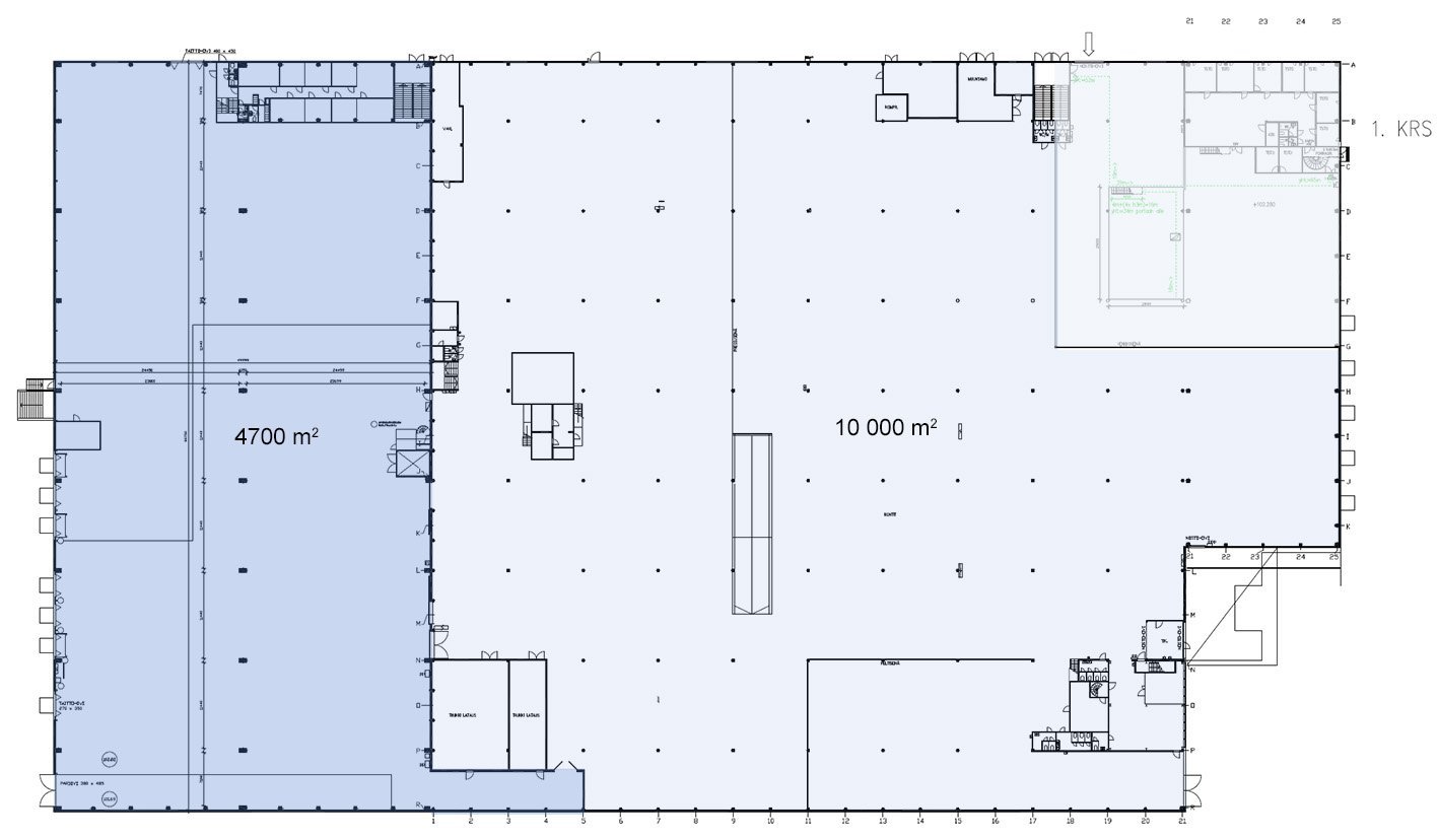
15000 m²

Lahden Askonalueella sijaitsevassa Upo2 Logistiikkakeskuksessa vuokrattavana tuotanto- ja varastotilaa. Oma liittymä valtatieltä. Sopii moneen käyttötarkoitukseen.

Tietoja tilasta

Tuotanto- ja varastotilaa

Lahden Askonalueella sijaitsevassa Upo 2 Logistiikkatalossa vuokrattavana tuotanto- ja varastotilaa.

Korkea varasto n. 4500 m2, jonka vapaa korkeus n. 10 metriä. Tilassa maantasossa oleva 5×4 metriä oleva taitto-ovi sekä 7 lastaustaskua.

Matalalla puolella vuokrattavissa varastotilaa noin 10 000 m2. Matalan puolen tila mahdollista jakaa useammaksi pienemmäksi vuokratilaksi 500-10 000 m2. Tilassa 3-5 lastaustaskua sekä lastauslaituri.

Askonalueen sijainti ja yhteydet ovat logistisesti loistavat: kuljetusliikennettä palvelevat Vt 12 Lahden eteläinen kehätie sekä E75 Lahti-Helsinki-moottoritie. Kuljetus ja tavaroiden liikuttaminen on vaivatonta toimivien piha- ja väylärakenteiden vuoksi.

Alueellamme on eri kokoisia varasto- ja työtiloja. Pystymme tarjoamaan tiloja valmiina tai suunnittelemalla ratkaisuja niin sanottuun raakatilaan.

Alueelle on mahdollista rakentaa myös täysin uutta tuotanto- ja varastotilaa.

Asiakastarina:
Case LGT Logistics: Toimivissa tiloissa, erinomaisten kulkuyhteyksien äärellä

Katso kohteen muita vapaita toimitiloja

Neliö­määrä

Kerros

Kiin­teistö

Lue lisää

268m²

3.krs

Askotalo

194m²

3.krs

Askotalo

20m²

0.krs

Askotalo

24m²

3.krs

Upotalo

698m²

2.krs

Askotalo

20m²

2.krs

Askotalo

17m²

2.krs

Askotalo

46m²

2.krs

Upotalo

Ota yhteyttä!

Simo Niemelä

Kiinteistöjohtaja

Yhteydenottolomake

Ota yhteyttä!

Simo Niemelä

Kiinteistöjohtaja

Yhteydenottolomake

Ota yhteyttä!

Marko Liimatainen

Toimitusjohtaja

Yhteydenottolomake

Ota yhteyttä!

Juha Avellan

Kiinteistöpäällikkö

Yhteydenottolomake