Search
Close this search box.

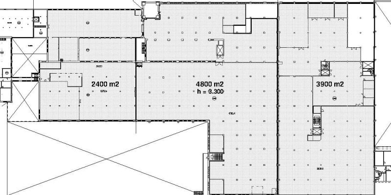
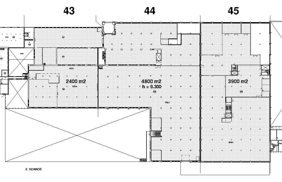
11000 m²

Varastotila rakennuksen 2. kerroksessa, useassa eri lohkossa, tilat lastauslaiturin ja rampin perässä.

Tietoja tilasta

Tuotanto- ja varastotila

Tuotanto- ja varastotila rakennuksen 2. kerroksessa, useassa eri lohkossa, tilat lastauslaiturin ja rampin perässä.

  • Tilojen korkeus n. 3,3 m
  • Kantavuus 750 kg/m2
  • Tilat kunnostetaan asiakkaan toiveiden mukaan
  • Kiinteistön lämmitysmuoto on kaukolämpö

Renorilla on vuokrattavana Forssan alueella tuotanto- ja varastotiloja, joiden yhteenlaskettu pinta-ala on noin 19 000 neliömetriä. Kohteet sijaitsevat Finlaysonalueella, osoitteessa Puuvillakatu 4, Forssa.

Kiinteistöltä on hyvät liikenneyhteydet valtaväylille, onhan kiinteistöissä toiminut aikoinaan yksi Pohjoismaiden suurimmista tekstiiliteollisuusalan yrityksistä. Kiinteistön reilunkokoinen tontti soveltuu hyvin rekkaliikenteelle ja se on kokonaan aidattu ja vartioitu. Tilat vuokrataan pääosin kylmävuokralla, jolloin käyttäjä maksaa lämmityksen ja ylläpitokulut toteutuneen mukaisesti.

Katso kohteen muita vapaita toimitiloja

Neliö­määrä

Kerros

Kiin­teistö

Lue lisää

20m²

4.krs

Vanha Kutomo

41m²

0.krs

Vanha Kutomo

1550m²

1.krs

Finlaysonin tehdas

14m²

4.krs

Vanha Kutomo

16m²

4.krs

Vanha Kutomo

24m²

1.krs

Vanha Kutomo

132m²

4.krs

Finlaysonin tehdas

7200m²

1.krs

Finlaysonin tehdas

Ota yhteyttä!

Simo Niemelä

Kiinteistöjohtaja

Yhteydenottolomake

Ota yhteyttä!

Simo Niemelä

Kiinteistöjohtaja

Yhteydenottolomake

Ota yhteyttä!

Marko Liimatainen

Toimitusjohtaja

Yhteydenottolomake

Ota yhteyttä!

Juha Avellan

Kiinteistöpäällikkö

Yhteydenottolomake