Search
Close this search box.

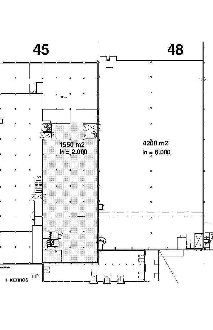
1550 m²

Varasto maantasossa (rullakkovarasto). Tilan korkeus noin 2 m, kantavuus 500 kg/m2.

Tietoja tilasta

Varastotila

varasto maantasossa (rullakkovarasto)

  • Tilojen korkeus n. 2 m
  • Kantavuus 500 kg/m2
  • Kiinteistön lämmitysmuoto on kaukolämpö


Renorilla on vuokrattavana Forssan alueella tuotanto- ja varastotiloja, joiden yhteenlaskettu pinta-ala on noin 19 000 neliömetriä. Kohteet sijaitsevat Finlaysonalueella, osoitteessa Puuvillakatu 4, Forssa.

Kiinteistöltä on hyvät liikenneyhteydet valtaväylille, onhan kiinteistöissä toiminut aikoinaan yksi Pohjoismaiden suurimmista tekstiiliteollisuusalan yrityksistä. Kiinteistön reilunkokoinen tontti soveltuu hyvin rekkaliikenteelle ja se on kokonaan aidattu ja vartioitu. Tilat vuokrataan pääosin kylmävuokralla, jolloin käyttäjä maksaa lämmityksen ja ylläpitokulut toteutuneen mukaisesti.

Katso kohteen muita vapaita toimitiloja

Neliö­määrä

Kerros

Kiin­teistö

Lue lisää

703m²

3.krs

Vanha Kutomo

68m²

4.krs

Vanha Kutomo

61m²

4.krs

Vanha Kutomo

158m²

4.krs

Finlaysonin tehdas

41m²

0.krs

Vanha Kutomo

20m²

4.krs

Vanha Kutomo

14m²

4.krs

Vanha Kutomo

235m²

1.krs

Vanha Kutomo

Ota yhteyttä!

Simo Niemelä

Kiinteistöjohtaja

Yhteydenottolomake

Ota yhteyttä!

Simo Niemelä

Kiinteistöjohtaja

Yhteydenottolomake

Ota yhteyttä!

Marko Liimatainen

Toimitusjohtaja

Yhteydenottolomake

Ota yhteyttä!

Juha Avellan

Kiinteistöpäällikkö

Yhteydenottolomake